Plot 110: Cairn - 4 Bedroom Home

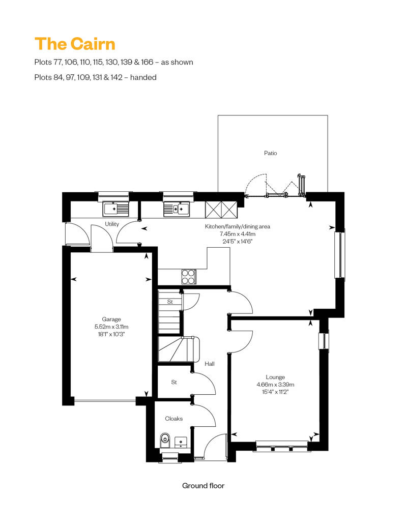
With a flowing family/dining area leading into an open plan studio designed kitchen and connecting utility room, practical use has been made of every space within the Cairn. Family barbecue or evening drinks with friends are both equally well catered form thanks to connecting bi-fold doors leading to private patio and garden. For cosier evenings, a separate and stylish lounge offers the perfect retreat.

Cinema room, home office or simply a teen escape, four generous bedrooms allow you the scope to create a home that works for all members of the family.

Space is matched with convenience, thanks to a downstairs WC, private driveway, excellent storage and an integral garage.


HBF 5 Star Rated Builder New Consumer Code NHBC NHQC

West Craigs

Plot 110 | £624,995


  • 4 Bedrooms

  • 3 Bathrooms

  • 1646 sq ft

  • Cairn

Tenure: Freehold

Service Charge: £131.74 P/A

Council Tax: Band G

EPC Rating: B

Property Type: Detached


Make an enquiry

Let's talk incentives tailored for you

Make our featured home yours

The Cairn is a spacious 4 bedroom detached home and available with: 

★ Full LBTT paid* (which could equate to a saving of £35,849)

Plus

★ Flooring, turf, lights & blinds

If you have a home to sell, why not ask us about our Part Exchange service?

Intrigued? Enquire today.

*for reservation by 23rd December 2025. Terms & conditions apply.

Enlarged view
The Cairn - Showhome photography
Photography may have been enhanced in post-production and may include upgrades at additional cost. Computer Generated Images may show features fittings, décor, flooring and soft furnishings which are not fitted as standard in a Cala home. CGIs are used to suggest possible finishes that can be achieved in your home at an additional cost. Please consult a Cala representative for further details. Predictive Energy Assessment and Energy Performance Certificate calculations in Scotland are changing. The specification and efficiency of our homes is not changing, but the EPC rating may, which could affect lending eligibility, particularly green mortgages. Visit www.cala.co.uk/epcscotland for more information or speak to a Cala sales representative.

The Cairn Showhome - Virtual Tour

Please note some design, specification items and finishes may differ.

The Cairn Showhome - Video Tour
Arrow up

Thank you.

A Cala sales representative will be in touch soon to discuss your enquiry.