Plot 22: Magnolia – Canford - 4 Bedroom Home

This attractive Lady Wimborne inspired home features a striking, centralised arch porchway, intricate brickwork and unique detailing to the underside of the eaves. The tiled cladding that surrounds the whole of the first floor further adds to the beauty of this stylised 4 bedroom family home.

The inside is equally as impressive. An expansive family/kitchen/dining room runs the length of the home and includes integrated Bosch appliances as standard. The generous sitting room leads out to the garden through French doors, and there is also a private study and a handy utility room.

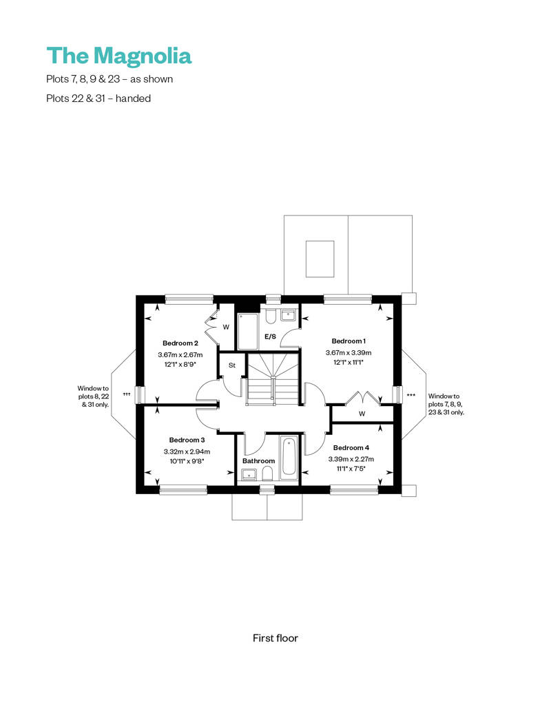
On the first floor, the spacious Bedroom 1 has the luxury and privacy of an en-suite with Porcelanosa tiling and White Roca sanitaryware, as well as the convenience of a fitted wardrobe. Bedroom 2 also enjoys the extra storage from a fitted wardrobe, and shares the family bathroom with Bedrooms 3 and 4. This beautiful home also has PV panels and an EV charging point as standard.

Parking arrangements - Plot 22 Two car barns and parking spaces | Plot 31 Car barn and parking space


HBF 5 Star Rated Builder New Consumer Code NHBC NHQC

Oakwood Park, Wimborne


  • 4 Bedrooms

  • 2 Bathrooms

  • 1440 sq ft

  • Magnolia – Canford

Tenure: Freehold

Service Charge: £349.77 P/A

Council Tax: Band Not Available

EPC Rating: A

Property Type: Detached


Make an enquiry
Enlarged view
Images shown are taken from various Cala showhomes or have been generated by computer (for indicative purposes only and are not to be presumed to be entirely accurate.) Showhome images feature fittings, décor, flooring, soft furnishings and landscaping that are not included as standard in a Cala home. Images are used to suggest possible finishes that can be achieved in your home at an additional cost. Please consult a Sales Representative for further details. Some images have been enhanced.
Arrow up

Thank you.

A Cala sales representative will be in touch soon to discuss your enquiry.