Plot 224: Fennel - Semi Detached - 3 Bedroom Home

Full Stamp Duty paid on plot 225*

With clever design and excellent use of space, The Fennel is a house any family would be proud to call home. The downstairs offers the kind of flexible living that makes everyday life a pleasure, from the substantial, front-facing sitting room to the huge, dual aspect kitchen/dining/family room at the rear, complete with a set of French doors leading out to the private garden.

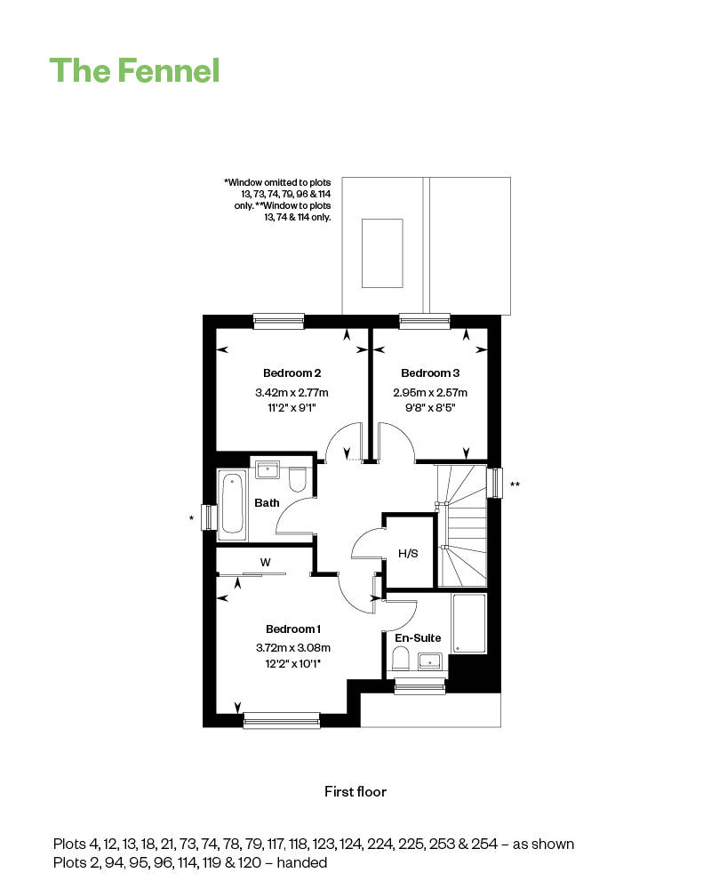
The upstairs also divides neatly, with generous, front-facing Bedroom 1 enjoying the benefits of an en suite and a fitted wardrobe. Bedroom 2 and 3 are also of a good size and share a separate family bathroom.

*Full Stamp Duty paid on a full price reservation on Plot 225 before 31.01.2026 and not in conjunction with any other offer. For full details visit www.cala.co.uk/terms


HBF 5 Star Rated Builder New Consumer Code NHBC NHQC

Birchwood, Farnham

Plot 224 | £735,000


  • 3 Bedrooms

  • 2 Bathrooms

  • 1162 sq ft

  • Fennel - Semi Detached

Tenure: Freehold

Service Charge: £480.00 P/A

Council Tax: Band Not Available

EPC Rating: B

Property Type: Semi Detached


Make an enquiry
Enlarged view
Explore our homes from the comfort of yours with our virtual tours.

These virtual tours may be taken from previous Cala showhomes and may be different from the same housetype at Birchwood.

Please speak with your Sales Advisor to find out more about the specification and layout.

Images shown are taken from various Cala showhomes or have been generated by computer (for indicative purposes only and are not to be presumed to be entirely accurate.) Showhome images feature fittings, décor, flooring, soft furnishings and landscaping that are not included as standard in a Cala home. Images are used to suggest possible finishes that can be achieved in your home at an additional cost. Please consult a Sales Representative for further details. Some images have been enhanced.
Arrow up

Thank you.

A Cala sales representative will be in touch soon to discuss your enquiry.