Plot 5: Whitebeam - 5 Bedroom Home

5 bedroom detached home with garage and 2 parking spaces. Make your move this year.

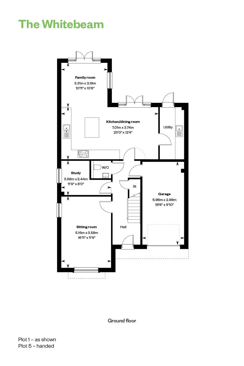
This spacious and well-appointed home offers a rare opportunity, with only two of this housetype available. The ground floor features a large kitchen/dining room with a central island and premium stone worktops, flowing into a comfortable family room. A separate utility room adds convenience, while a dedicated study on the ground floor provides the perfect work-from-home space.

The sitting room offers a relaxing retreat, and the integral garage ensures secure parking and additional storage.

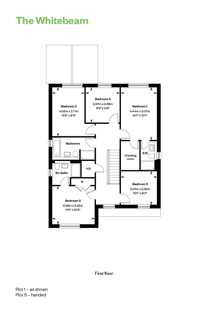
Upstairs, two bedrooms benefit from en suites, with bedroom one also featuring a dressing room. Bedroom two includes fitted wardrobes, combining style with practicality. 

What sets us apart from the competition is our carefully considered, spacious designs with exceptional quality specifications, including integrated appliances, amtico flooring, fitted wardrobes, ample storage, solar PV panels, air source heat pumps, electric vehicle chargers, and turfed rear gardens.


HBF 5 Star Rated Builder New Consumer Code NHBC NHQC

Cala at Himley Village, Bicester

Plot 5 | £825,000


  • 5 Bedrooms

  • 3 Bathrooms

  • 1957 sq ft

  • Whitebeam

Tenure: Freehold

Service Charge: £167.07 P/A

Council Tax: Band Not Available

EPC Rating: A

Property Type: Detached


Make an enquiry
Enlarged view

Take a virtual tour

This virtual tour may be taken from previous Cala showhomes and may be different from the same housetype at Himley Village. Please speak with your Sales Advisor to find out more about the specification and layout.

Gallery
Photography may have been enhanced in post-production and may include upgrades at additional cost. Computer Generated Images may show features fittings, décor, flooring and soft furnishings which are not fitted as standard in a Cala home. CGIs are used to suggest possible finishes that can be achieved in your home at an additional cost. These photos may be taken from previous Cala showhomes and may be different from the same house type at Himley Village. Please speak with your Sales Representative to find out more about the specification, layout and any further details.
Arrow up

Thank you.

A Cala sales representative will be in touch soon to discuss your enquiry.