Plot 65: Mulberry - Mid Terrace - 4 Bedroom Home

Secure your move to Barden Croft. Introducing the Mulberry, a 4 bedroom terrace home with 1,416 sq.ft of space. This unique three storey home features a car port, 2 driveway parking spaces, flooring throughout and turf to the rear garden.

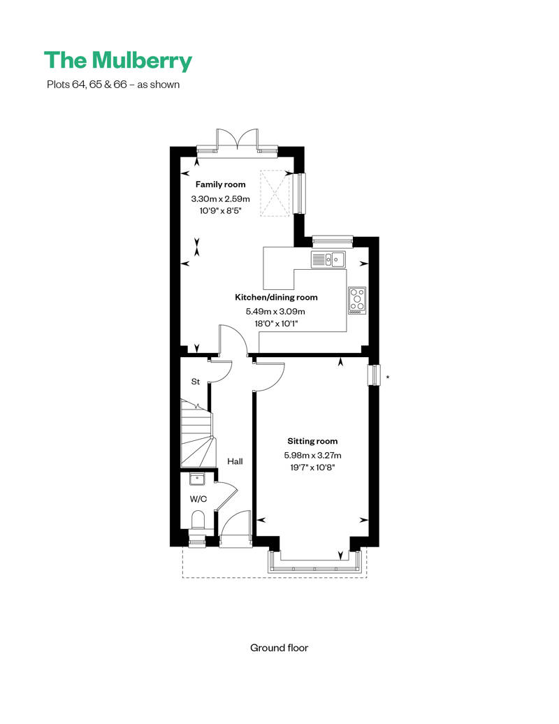
Offering flexible living over three floors, The Mulberry accommodates everyone in contemporary comfort. A spacious open plan kitchen/dining room/ family room shares the ground floor with an impressive vaulted ceiling skylight.

Upstairs provides a real sanctuary, where you can relax in two double bedrooms, a private dressing room and en suite to bedroom one, as well as the shared family bathroom for bedroom two. Or escape to two more bedrooms on the second floor, which has a shower room off of bedroom four and a joint study to share.

Call our friendly sales team to register your interest in this beautiful family home.


HBF 5 Star Rated Builder New Consumer Code NHBC NHQC

Barden Croft, Tonbridge

Plot 65 | £700,000


  • 4 Bedrooms

  • 3 Bathrooms

  • 1416 sq ft

  • Mulberry - Mid Terrace

Tenure: Freehold

Service Charge: £341.71 P/A

Council Tax: Band Not Available

EPC Rating: C

Property Type: Terrace


Make an enquiry
Enlarged view
Images shown are taken from various Cala showhomes or have been generated by computer (for indicative purposes only and are not to be presumed to be entirely accurate). Showhome images feature fittings, décor, flooring, soft furnishings and landscaping that are not included as standard in a Cala home. Images are used to suggest possible finishes that can be achieved in your home at an additional cost. Please consult a Sales Representative for further details. Some images have been enhanced.
Arrow up

Thank you.

A Cala sales representative will be in touch soon to discuss your enquiry.