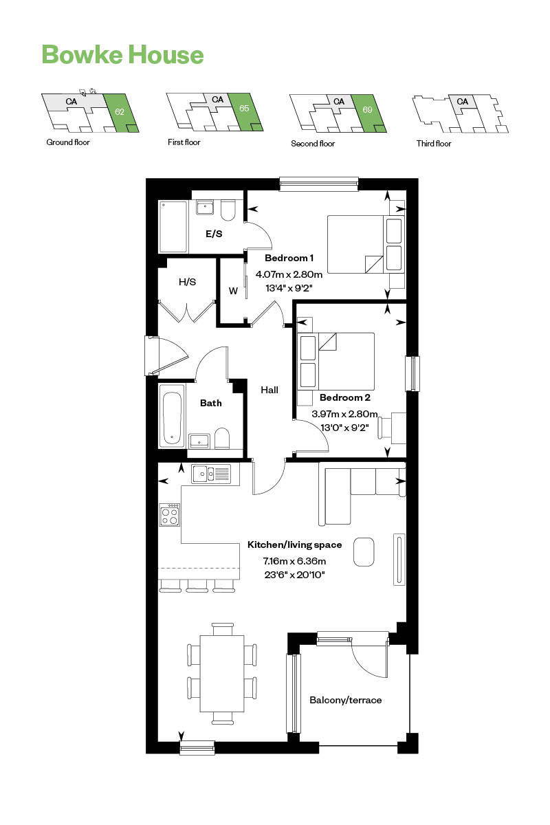
Plot 65: Bowke House – Plot 65 - 2 Bedroom Home

This spacious first floor apartment at Bowke House offers a seamless blend of traditional character and modern convenience. Designed to maximise natural light and space, it’s an ideal home for those seeking comfort, style, and functionality.

The generous open-plan kitchen/living space forms the heart of the home, with French doors leading out to a private balcony, perfect for entertaining or enjoying peaceful outdoor moments.

Two well-sized bedrooms provide flexibility for family, guests, or working from home. The primary bedroom features an en-suite bathroom and fitted wardrobe, while the second bedroom is served by a stylish family bathroom.

Additional features include hallway storage, lift access, allocated parking, and an electric car charging point.


HBF 5 Star Rated Builder New Consumer Code NHBC NHQC

Kings Barton at The Green

Plot 65 | £385,000


  • 2 Bedrooms

  • 2 Bathrooms

  • 887 sq ft

  • Bowke House – Plot 65

Tenure: Leasehold

Service Charge: £1933.64 P/A

Council Tax: Band Not Available

EPC Rating: B

Property Type: Apartment


Make an enquiry
Enlarged view
Images shown are taken from various Cala showhomes or have been generated by computer (for indicative purposes only and are not to be presumed to be entirely accurate.) Showhome images feature fittings, décor, flooring, soft furnishings and landscaping that are not included as standard in a Cala home. Images are used to suggest possible finishes that can be achieved in your home at an additional cost. Please consult a Sales Representative for further details. Some images have been enhanced.
Arrow up

Thank you.

A Cala sales representative will be in touch soon to discuss your enquiry.