Plot 92: Acton - 3 Bedroom Home

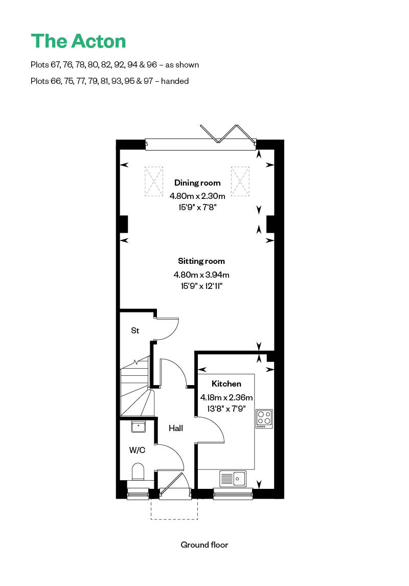
With 3 storeys and 3 bedrooms, The Acton is a versatile home for growing families. The expansive ground floor divides neatly between the generous, open-plan sitting/dining room, complete with bifold doors leading out to the garden, and the bright and airy kitchen at the front.

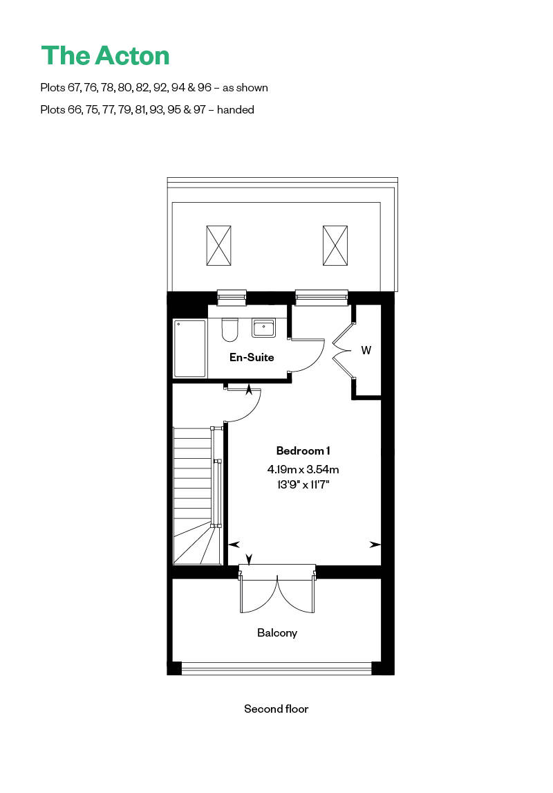
Bedroom 1 has the second floor all to itself, with an en suite, fitted wardrobe and its own private balcony which looks out over the front of the property. 

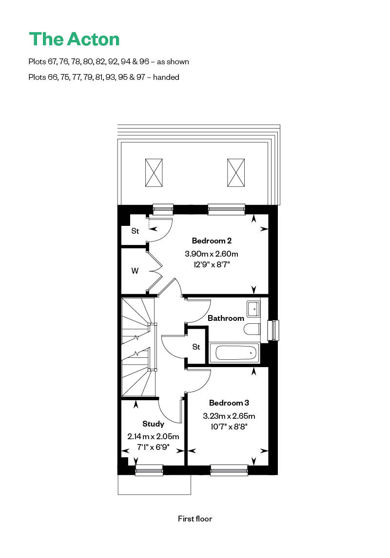
On the first floor, bedroom 2 runs the width of the house and has a fitted wardrobe and storage cupboard, also sharing a family bathroom with front-facing bedroom 3. A handy private study completes the floor.


HBF 5 Star Rated Builder New Consumer Code NHBC NHQC

Cala at Buckler's Park - The Heights, Crowthorne

Plot 92 | £555,000


  • 3 Bedrooms

  • 2 Bathrooms

  • 1301 sq ft

  • Acton

Tenure: Freehold

Service Charge: £236.39 P/A

EPC Rating: B

Property Type: Semi Detached


Make an enquiry
Enlarged view
Images shown are taken from various Cala and Legal & General Homes showhomes or have been generated by computer (for indicative purposes only and are not to be presumed to be entirely accurate.) Showhome images feature fittings, décor, flooring, soft furnishings and landscaping that are not included as standard in a Cala home. Images are used to suggest possible finishes that can be achieved in your home at an additional cost. Please consult a Sales Representative for further details. Some images have been enhanced.
Arrow up

Thank you.

A Cala sales representative will be in touch soon to discuss your enquiry.