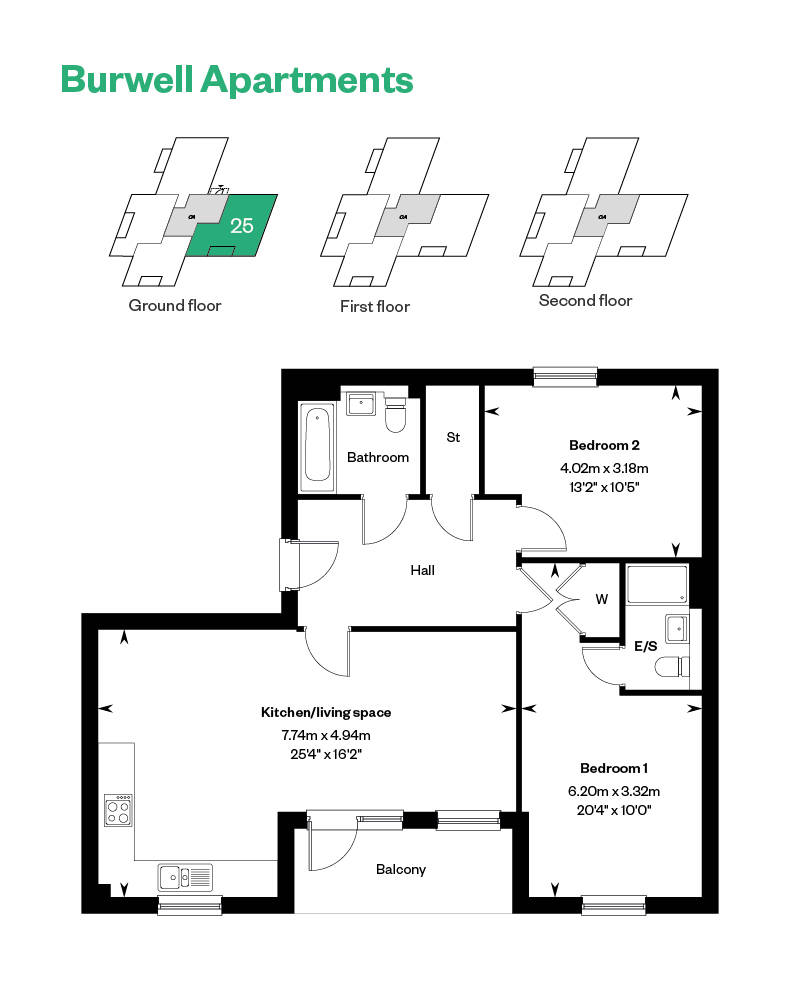
Plot 25: The Burwell Apartments - 2 bedroom ground floor - 2 Bedroom Home

Life on one level definitely has its benefits. With your open plan kitchen/living space, enjoy creating tempting treats using state-of-the-art built-in appliances, then relaxing in your private patioed space.

A choice of two bedrooms allows space for family or guests. Did you notice the fitted wardrobes and en-suite in the main bedroom? A family bathroom completes this contemporary living space.

Plots 25: A two bedroom apartment benefits from 888 sq. ft. of space. The patio is the ideal space to unwind after a long day. The bedroom includes a built-in wardrobe, en-suite and is the perfect end-of-day retreat.

Plot 28: With 810 sq. ft. of space to enjoy, the two bedroom apartment offers plenty of space for family or friends. It’s perhaps already clear who will select the one with en suite and built-in wardrobe. A stylish family bathroom completes this contemporary living space.


HBF 5 Star Rated Builder New Consumer Code NHBC NHQC

Netherhall Gardens, Cambridge

Plot 25 | £400,000


  • 2 Bedrooms

  • 2 Bathrooms

  • 888 sq ft

  • The Burwell Apartments - 2 bedroom ground floor

Tenure: Leasehold

Service Charge: £2078.00 P/A

Council Tax: Band Not Available

EPC Rating: B

Property Type: Apartment


Make an enquiry

New and reduced price!

Was £425,000. NOW £400,000

Enlarged view
Images shown are taken from various Cala showhomes or have been generated by computer (for indicative purposes only and are not to be presumed to be entirely accurate.) Showhome images feature fittings, décor, flooring, soft furnishings and landscaping that are not included as standard in a Cala home. Images are used to suggest possible finishes that can be achieved in your home at an additional cost. Please consult a Sales Representative for further details. Some images have been enhanced.
Arrow up

Thank you.

A Cala sales representative will be in touch soon to discuss your enquiry.