Plot 1: Foxton with studio - 4 Bedroom Home

3 bedroom semi-detached home with studio and generous garage

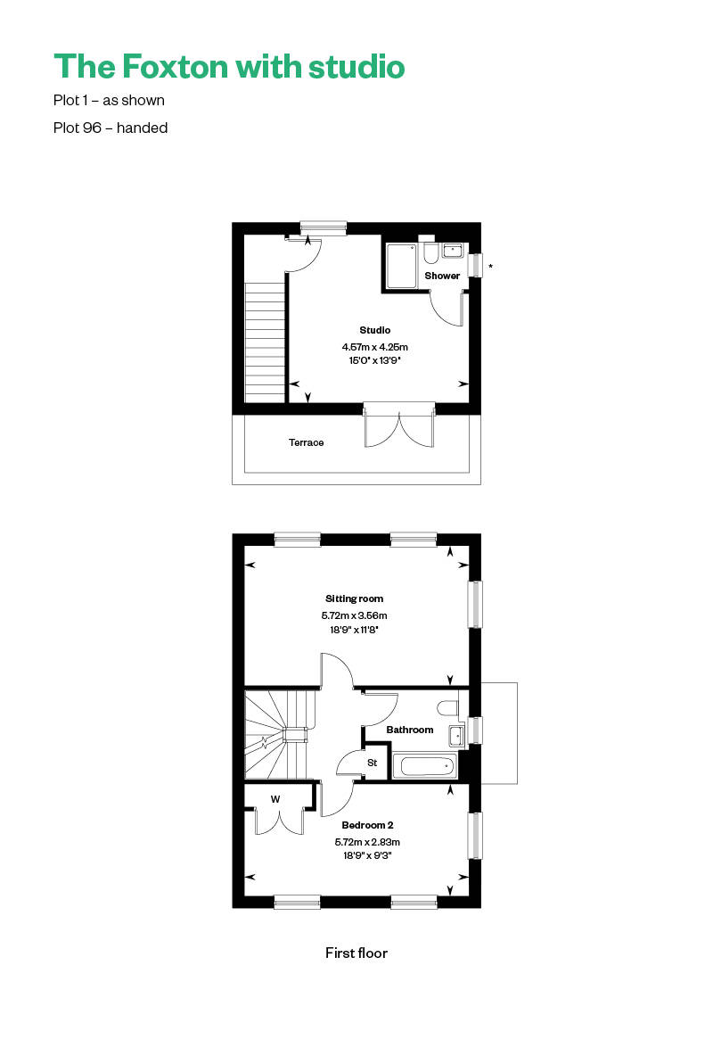
This is a family home with great features and flexible living spaces over three floors. Room to grow, with three bedrooms and the added bonus of a studio room complete with en-suite and its own outdoor terrace over the garage – giving you and your family even more freedom to live life the way you want to.

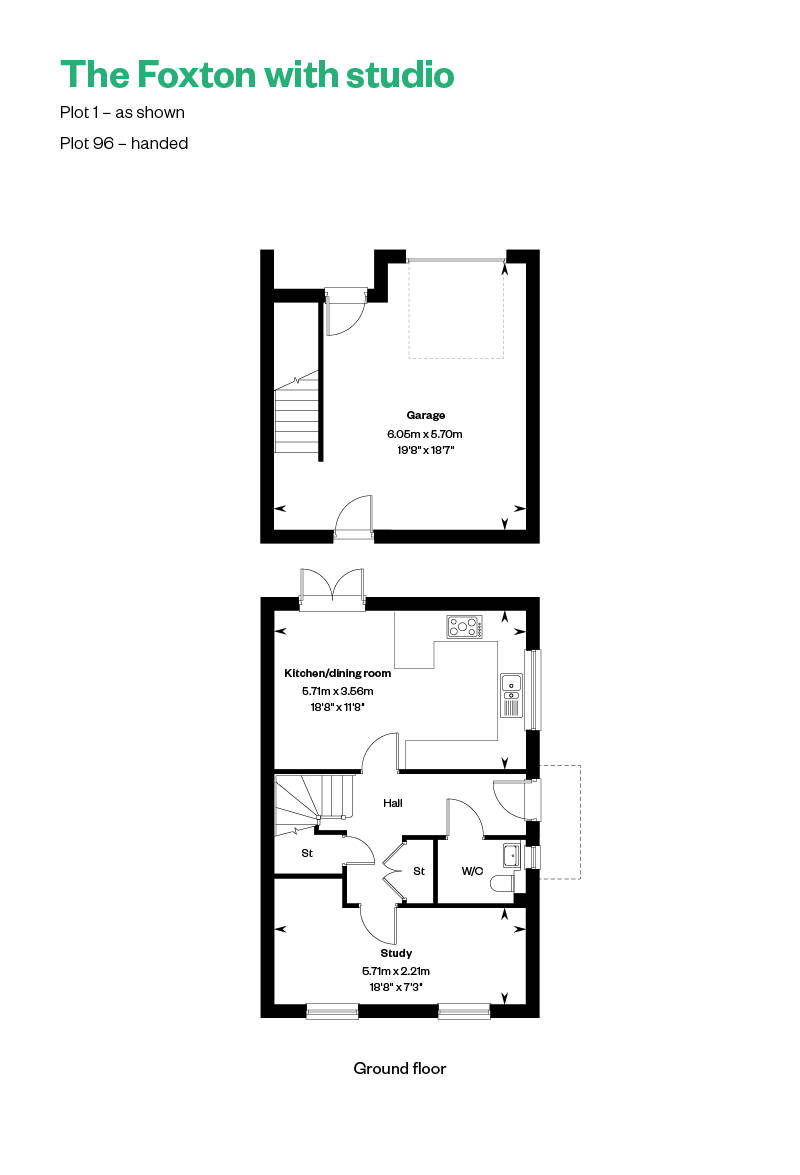
On the ground floor, an expansive kitchen/ dining room stretches the width of the home and opens out into the garden for safe play or entertaining. There’s a separate study which could double as a cinema room, playroom or den, while the spacious, dual aspect sitting room on the first floor is flooded with natural light. Light-filled, dual aspect Bedroom 2 is located on the other side of the landing and features a built-in wardrobe, and there is a shared family bathroom opposite the stairs.

Impressive bedroom one comes complete with a stylish en-suite and a large fitted wardrobe on the second floor, while spacious, dual aspect bedroom three overlooks the front of the home.


HBF 5 Star Rated Builder New Consumer Code NHBC NHQC

Netherhall Gardens, Cambridge

Plot 1 | £979,950


  • 4 Bedrooms

  • 3 Bathrooms

  • 1869 sq ft

  • Foxton with studio

Tenure: Freehold

Service Charge: £261.00 P/A

Council Tax: Band Not Available

EPC Rating: B

Property Type: Semi Detached


Make an enquiry

Secure this home with upgrades included and £48,997.50 deposit contribution*

Enjoy having your dream home benefitting upgrades including: Amtico Spacia flooring and carpets throughout, silestone work surface to kitchen and turf to rear garden.

This home is available with £48,997.50 deposit contribution*

*5% Deposit contribution available on plot 1 at Netherhall Gardens, for reservations before the 31st March 2026. This offer is available at full asking price of £979,950 and not in conjunction with any other service or incentive unless agreed by us at time of reservation.

Enlarged view
Images shown are taken from various Cala showhomes or have been generated by computer (for indicative purposes only and are not to be presumed to be entirely accurate.) Showhome images feature fittings, décor, flooring, soft furnishings and landscaping that are not included as standard in a Cala home. Images are used to suggest possible finishes that can be achieved in your home at an additional cost. Please consult a Sales Representative for further details. Some images have been enhanced.
Arrow up

Thank you.

A Cala sales representative will be in touch soon to discuss your enquiry.